28橋の耐震対策を優先的に進める
耐震性能レベルは2を目指す
――耐震補強の進捗状況は
有田 管内橋梁456橋のうち溝橋136橋を除くと320橋となり、さらに側歩道橋36橋、平成15年以降建設の橋心配ないので185橋になり、単径間を除くと102橋になり、平成8年の道路橋示方書と照らし合わせて問題ないものが60橋あるため、それらを差し引いた残り42橋の耐震補強を進めていくことが当面の目標となります。
その中でも震度6弱よりも大きい地震が26%を超える確立で推定される地域にある橋梁を優先して進めます該当橋梁は28橋です。

耐震対策の考え方
――耐震補強の性能レベルは2(地震による損傷が限定的で、機能の回復が速やかに行い得る性能)と3(地震による損傷が致命的とならない性能)がありますが、42橋については、3と2のどちらで補強するのですか
有田 考え方としては、大阪府域道路啓開協議会で、直轄だけではなくて、さまざまな道路管理者がネットワークとして、段差の通過もふくめてどこから啓開ができるかの優先順位を議論して、実際の啓開作業の時間と方法を1年かけて詰めていきます。そこではっきり答えが出れば、それにあわせて2に上げなければならない橋は当然出てくるだろうと認識しています。
――42橋に関しては「耐震性能2」で補強するわけですね
有田 そうです。もっとも平成24道示で、桁かかり長と落橋防止構造というのは当時のいわゆる復旧仕様や平8、14年の道示から基本的な考え方は変わっていなかったと思います。重要路線の橋梁は2で当時から補強しているはずですので、その意味ではクリアをしていると理解しています。
今年度は3橋に着手
――42橋のうち今年度の実施橋梁は
有田 現在、着手しているのは、国道43号尻無川橋と国道1号寝屋川高架橋、国道26号牛滝川橋となります。それと、耐震補強の名目ではありませんが、淀川大橋は耐震の機能を兼ね備える形で行っています。尻無川橋は今年度下り線の支承を補強しており、来年度も引き続いて上り車線側の支承補強を実施する予定です。牛滝川橋は落橋防止装置の設置工事を進めており、今年度完成する予定です。
――橋梁の長寿命化計画に基づいた対策の進捗状況と補修補強内容は
有田 平成26年度から5カ年での点検は4年度目の今年度(平成29年度)末で約80%が完了します。特徴的なものはありませんが。

橋梁点検実施状況
――ウエブに局所的ですが穴が開いている写真もありますね
有田 もともとの施工不良と、施工後の水の影響が一番大きいと思います。




補修補強事例①(船場川橋上り線)




補修補強事例②清水橋
安治川橋で振動による疲労亀裂
箱桁の中の水が悪さも
――経年劣化、疲労による上部工補修補強の実績と今年度の施工計画は
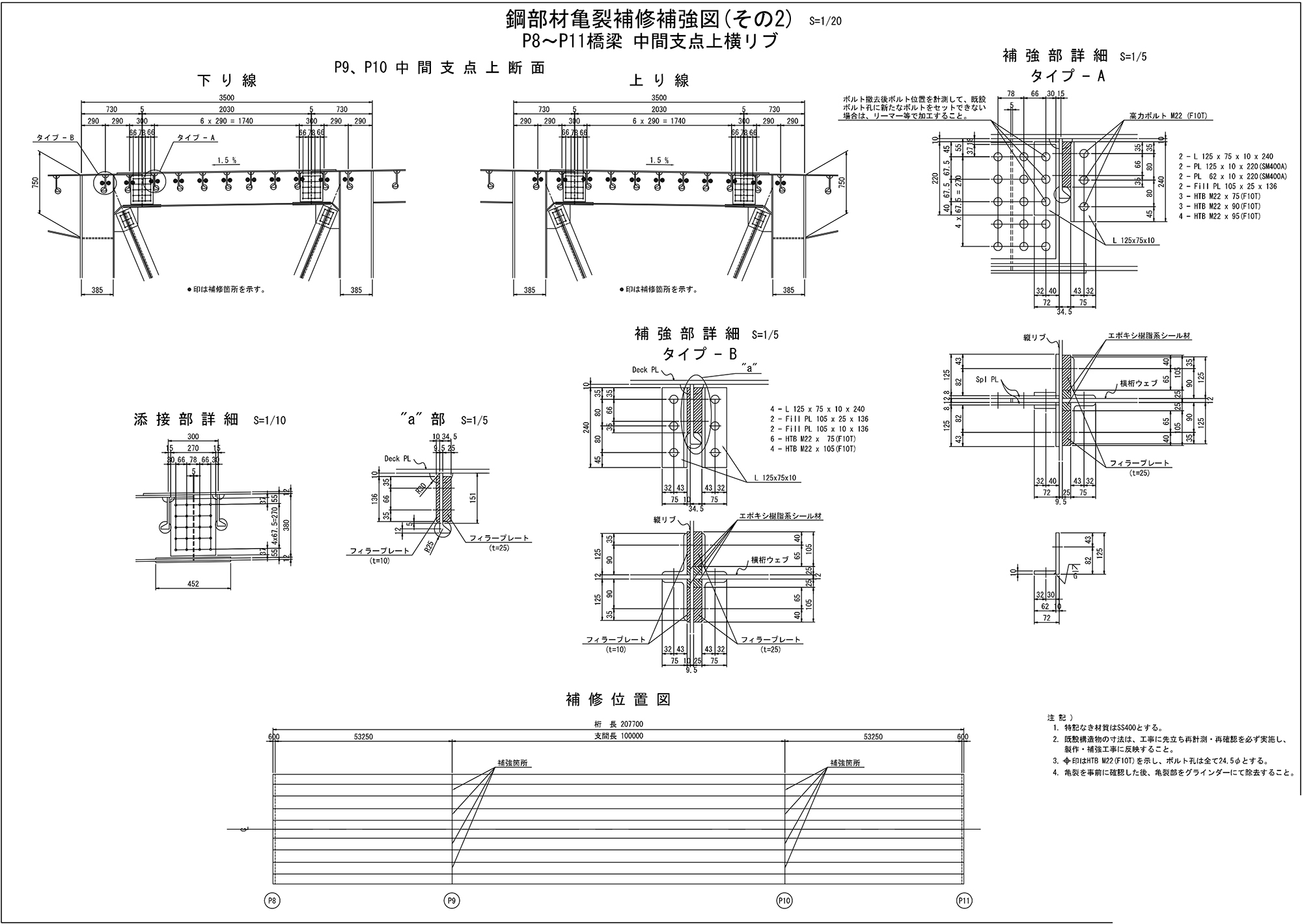
有田 特徴的な補修工事としては、国道43号の安治川橋の例が挙げられます。同橋は鋼床版をもつ橋梁ですが、よく発生するUリブの溶接部ではなくて、中間支点上の横リブの付け根(断面変化点)にき裂が発生しています。下からの力が働くところの断面がとくに変化しているところとなります。下から対傾構で支えている個所です。




安治川橋損傷状況写真


亀裂補修補強図面
――床版には亀裂は生じていないのですね
有田 床版には損傷が出ていません。普通、Uリブの上の基層はグースですが、ここはコンクリートを載せています。グースを取るのが大変で、管理が楽な普通コンクリートを打設したようです。そうすると、直接荷重がUリブにかからないため、それほど疲労損傷は起きていません。
――では、この対傾構の根元部分が傷んでいるのは
有田 別な意味でのき裂が入ったからではないかと考えています。
――活荷重によるき裂ではなくて、振動による疲労でしょうか
有田 そう思います。伸び縮みするときに一番弱い部分にひびが入ったのではないかと。かえって対傾構が突っ張り棒のように作用してしまって、悪さをしている可能性はあります。また、当時の交通量も効いたと思います。道路公団がつくった橋ですが、償還期間の半分で償還しました。よほど交通量が多かったのだと思います。
――古い高速道路でも同じような事例がありました。構造的に問題のない対傾構を取ってしまうことで解決していた記憶があります
有田 そこまで考えずに、痛んだところは、メタルは簡単に厚みを増せばいいと考えていて、間違ってはいないと思います。
――床版上は現在のSFRCのように半ば補強をしている形ですね
有田 そうです。ただし、ボックスの箱桁の中に20cmくらい水が溜まっていました。それだけで何トンになるか、という話です。
――ほかに鋼部材の亀裂損傷はないですね
有田 ありません。
――ほか、橋梁上部工の補修補強の実績は
有田 平成26年度は7件、27年度は神崎大橋の1件、28年度は国道43号尻無川橋下り線など3件、今年度は寝屋川高架橋の1件です。

上部工補修実績
床版防水実施確認は172橋
損傷顕著および舗装打ち替えの際に防水工を施工
――床版防水の施工状況は。またどのような材料・工法を採用していますか
有田 実施済みが172橋で、不明が284橋となります。基本的に全橋梁に防水工を行っていきたいと考えています。漏水による損傷が顕著な橋梁、橋面舗装を補修する必要のある橋梁を優先に実施しています。材料・工法の性能というよりも、施工とりわけ端部の処理をより早期の損傷が起きないように工夫できないか、ということを求めたいと考えています。たとえば伸縮継ぎ手との取り合いを有する桁端部や中央分離帯や壁高欄の地覆立ち上げ部、排水桝付近の処理です。こうした箇所の構造的あるいは施工的な工夫が必要と感じています。
――今後の予定は、交通量もあるので、予防保全とはいかないでしょうが、橋梁の舗装打ち換え時に床版防水を行うことはないのでしょうか
有田 正直にいうと、橋梁上のみならず道路舗装の単純打ち換えはなかなか予算がつきません。20年ぐらい前は維持修繕の予算の半分近くは舗装でしたが、いまは舗装単独工事を発注していなくて、橋梁の保全などに予算を使っています。あとは、電線共同溝などの街中の道路で舗装をいじるときに、合わせて舗装を直しています。
――10年くらい前に中国地方の国道事務所を取材したときに、2号はきれいだけど、北に行く国道はパッチだらけだと当時の所長が話していました。その話を当時の中国地整の道路保全関係者にすると、国民がどのような道路を求めるかだ、と諦め気味に話していました。小泉内閣の時代で公共事業を減らせという大合唱が起き始めた時期で、各道路公団の民営化の話もあり、舗装に投じる予算もなくなっていました。それが現在でも効いているのですね
有田 じわじわと効いています。塗装もそうです。
――支承の取替えや伸縮装置交換、ノージョイント化については
有田 支承は補修が必要なところは行っていく方針です。平成24年度に神崎大橋、平成28年度に庭窪ランプ橋で支承を取替えています。管内の支承は阪神大震災後の復旧時に直している個所が多くあります。
ノージョイント化についての予定は今のところありません。
ASRによる損傷が見られる堺高架橋
全線に渡って中分の直下のみ止水が未対策
――塩害とASRによる劣化損傷の有無とある場合の対策は
有田 塩害は特に生じていません。
ASRは堺高架橋で顕著です。京都大学の宮川豊章先生などにご協力いただいて、P2、P3のモニタリングや近畿技術事務所での供試体モニタリング調査をしながら、早ければ来年度から予算をつけて手を打っていきたいと考えています。

堺高架橋とASR供試体試験
――どの部分にASRが生じているのですか
有田 橋上のRC壁高欄は外側・中央分離帯部とも、過年度において表面にライニングを施していますが、ひび割れが発生している状況です。舗装部は上下線ともに床版防水(シート系防水)が施工されています。また、P3~P50区間は平成20~22年度の補修工事で2重止水など止水性を向上させた伸縮装置に更新しています。P55以降の区間については、平成15~16年度の補修工事で伸縮装置が更新されていますが、残念ながら止水性を向上させた構造とはなっていません。全線にわたって中央分離帯の直下のみ止水対策が施されておらず、G2桁の下へ漏水が生じる状況になっています。主桁や床版は詳細調査によってASRの影響を多少受けていることが確認されています。


堺高架橋の現状の損傷状況/同橋の漏水による損傷状況
ASRが近畿地整のなかで最初に見つかったのが堺高架橋です。宮川先生には調査の当初から携わって頂いています。骨材の産地まで調べています。
――骨材まで調べられたのですか、それは大きいですね。産地はどこだったのですか?
有田 奈良の吉野産、瀬戸内海の豊島産など、様々です。そうした箇所の骨材は以後使わないよう徹底しています。
――大阪では、阪神高速でも一部の橋梁でASRによる損傷が起きていました。私も平成16年ごろに広島国道が所管する国道2号海田高架橋でそうした大きな損傷を実際に見たことがあります(ASRリチウム工法で補修済み)。P2、P3のジョイント部分の損傷の話をされていましたが、海田高架橋ではすべての構造物で同じASR骨材を使用しているのに、ジョイント部の進行と比較して、桁の連続化部分はそれほど進行していませんでした。水が影響していると考えられましたが、堺高架橋の場合はどうですか
有田 すべてが水とは言い切れませんが、桁連続部に位置するP2は(G2の)隙間からの水や横からの雨水が供給されたため、現在のような損傷が起きていると考えられます。P3はP2の要因に合わせてジョイント部からの漏水も供給されています。そうした絶え間ない水の供給が、反応性骨材の反応を促進してきたと考えられます。
――桁はRCでしょうか
有田 スパンの長いところは鋼桁ですが、そうでないところはコンクリートです。ゲルバーを有するRC桁です。ただし、吊桁はありません。
――ゲルバーを有する橋梁についてはその解消をする補修が全国的に増えています。堺高架橋は吊桁ではないので直ちに落橋の恐れはないようですが、ゲルバーの部分からの漏水や今後の管理のしにくさがネックになると思います。ここではゲルバーの解消を考えているのですか
有田 まだ決まっていません。基本はまずASRを直していくことになっています。そのあと、ゲルバーの対策を考えていくべきことだろうと思います。堺高架橋の架設地は人家連坦地域で、抜本的に構造を変えることはよほどの決意をしないと難しいと思います。
――桁下は占有できる状況でしょうか
有田 生活道路になっていて、容易に占有できる状況ではありません。宮川先生も懸案事項だと考えていますが、答えがなかなかでません。
――ゲルバー部分のASRは
有田 ないわけではありませんが、ゲルバーに限ってという話ではありません。
いずれ、割と新しい第二京阪でも橋のメンテナンスという点では同じようなことが起こる可能性もあります。実際に堺高架橋で問題になっているのは、反応性が遅い骨材を使用した箇所です。



堺高架橋の維持管理計画(案)
――散布する塩の種類を変えただけでも反応が進むものもあり、ASRのメカニズムはよくわからないですよね。さて、次に橋梁の塗替えについて聞きます。桜宮橋での塗替え時に初めてPCBを含んだ塗膜を処理(インバイロイワン工法を採用)したということで取材をしたことがありますが、PCBや鉛などの入った既存塗膜の塗替えをどのように進めていきますか。また高耐久性塗料や溶射などを採用することはありますか
有田 塗替えは、優先順位や予算的な制約もあり、最近行っていません。手法についてはそのつどで検討していくことになると思います。
――管内に鋼橋は多いですよね
有田 現在リニューアル工事を行っている淀川大橋も全橋の塗装塗り替えは行わず、明らかに悪くなっている個所を部分的に塗り替える方針です。塗膜剥離方法はネオリバー泥パック工法を採用しています。
新伝法大橋で耐候性鋼材使用
リベットも耐候性鋼材
――耐候性鋼材の使用例と健全性の状況は
有田 新伝法大橋で耐候性鋼材を使用しています。現在の基準ではあまり使用してはいけない環境下にあります。ただ、平成27年の点検では問題が見られていません。ここはリベットまで耐候性鋼材を使用しています。当時の阪神国道事務所が施工しました。塗装しているのは中央部の2スパンのみです。昭和39年供用で、耐候性鋼材を使用した橋梁でも最初期の例と思われます。
――リベットまで耐候性鋼材を使用しているのですか
有田 あくまで当時の耐候性鋼材であり、現在基準で該当するかどうかはわかりませんが、そのように記録されています(「第二阪神国道工事誌」建設省近畿地方建設局阪神国道工事事務所刊、1975年)。
――湿気は
有田 あまりありません。
――クリアランスは
有田 水面から10mくらいです。形式は箱桁を採用しています。
――劣化した場合、これからどうやって直すのでしょうか
有田 基本は、当て板をして、穴をあけてボルトで締めるしかありません。補強はすべてボルトで行っています。
























