462箇所の橋梁と22箇所のトンネルを管理
供用30年以上の橋梁が半数近くを占める
――次に保全について。まず所管している橋梁の数と内容、同様にトンネルの数と内容についてお答えください
河畑 当建設部が所管している橋梁は全部で462橋です。一番多いのがRC橋で163橋、次いでPC橋が151橋、鋼橋が144橋、その他が4橋となっています。橋長別では15m未満が199橋、15m以上が263橋です。供用年次別では1965年以前が69橋、以降66~75年が80橋、76~85年が63橋と供用30年以上は全体の半数近くを占めています。

管内の橋梁内訳(帯広開発建設部提供)
トンネルは全体で22箇所管理しており、工法別では在来が18箇所、NATMが4箇所となっています。延長別では500m未満が15箇所、500~1,000m未満が4箇所、1,000m以上が3箇所となっています。建設年次別では、1965年以前が4、66~75年が3、76~85年が6と建設後30年以上を経過したトンネルが過半を占めています。

管内のトンネル内訳(帯広開発建設部提供)
橋種に関わらず凍害によるコンクリート部材の損傷が散見
トンネル 覆工本体のひび割れや浮きも
――点検を進めて見て分かった管内構造物の劣化状況について詳しく述べてください
河畑 橋梁については橋種に関わらず凍害によるコンクリート部材の損傷が見受けられます。床版や主桁のひび割れ・剥離・鉄筋露出などが見られます。また、経年劣化による防食機能の低下や漏水を原因とした伸縮装置、排水管の腐食も見受けられます。
トンネルについては、経年劣化による覆工本体のひび割れや浮き、覆工目地部からの漏水・氷柱などが見られます。
――橋梁などの耐震補強の進捗状況および落橋防止装置の設置状況はどこまで進んでいますか。また今年度の設置予定についても教えてください
河畑 管内の要対策橋は63橋あり、そのうち緊急輸送道路では48橋となっています。今年度は国道274号日勝大橋、336号十勝河口橋等5橋の耐震補強工事を施工中です。
落橋防止装置については、耐震補強設計によっては支承が機能を果たし設置が不要となる橋梁もあるため、今後の検討状況によっては設置する対象数が変わります。今年度は十勝河口橋等、2橋で設置する予定です。
十勝河口橋と日勝大橋などで耐震補強が進捗
十勝河口橋は落橋防止対策で対応
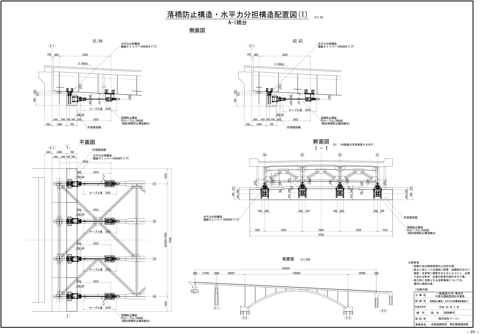
――十勝河口橋は長大橋でなおかつ主径間はヒンジを有します。また日勝大橋は3径間連続逆ローゼ橋であり、標高1,000mを超える箇所に設置されている特殊橋です。両橋についてどのような耐震補強を行うのかもう少し具体的に教えていただけましたら幸いです。まず十勝河口橋の諸元と橋長と設計示方書年次から教えてください
河畑 橋長928mの3径間連続PC箱桁+3径間連続PC有ヒンジラーメン箱桁橋+3径間連続PC箱桁橋+3径間連続PC箱桁橋で適用示方書は昭和55年道示です。
――十勝河口橋の耐震的に不足している状況はどのようなものなのでしょうか、部位を明らかにして定量的かつ具体的に教えてください
河畑 平成24年道示に照らし合わせると、可動橋脚(P-1,P-8,P-11)の直角方向(せん断補強)、かけ違い橋脚(P-3,P-6)の段落し部(段落し部補強)、固定橋脚(P-2,P-7,P-10)の橋軸方向(せん断補強)が必要です。ただし、2003年十勝沖地震で被災した際の復旧方針((支承部を過度に補強せず、橋脚の耐力以下とすることで橋脚補強を回避する)も踏まえ、解析によって所要の安全性が確保されることが確認されたため、橋脚の補強は行いません。
――特にヒンジ部を今回どのように扱うのでしょうか(連続化するのか、そのままなのか)
河畑 ヒンジ部はそのままとしています。
――最終的に全体をどのような思想でどのような量補強していますか
河畑 落橋防止対策のみを行う予定です。
日勝大橋は座屈拘束ブレースを採用
当て板補強の最大板厚をt=22mm以下に抑える
――次に日勝大橋について諸元と橋長と設計示方書年次から教えてください
河畑 橋長185mの3径間連続逆ローゼ+単純鈑桁で適用道路橋示方書は昭和48年道示です。

耐震補強中の日勝大橋(帯広開発建設部提供)



日勝大橋耐震補強設計図面の一部(帯広開発建設部提供)
日勝大橋A1側落橋防止装置設置状況/A2側固定装置及び補剛桁補修設置完了状況(帯広開発建設部提供)
――日勝大橋の耐震的に不足している状況はどのようなものなのでしょうか、部位を明らかにして定量的かつ具体的に教えてください
河畑 橋軸直角方向地震時にアーチリブの基部が塑性化することと、橋軸方向地震時に補剛桁の端部が塑性化する点です。
――特にアーチ部をどのように補強するのでしょうか、具体的な部位・工法・材料を教えてください。最近はこうした橋梁形式では免震または制震的な補強を選択することが多いですが、なぜ今回の補強工法を採用したのか理由も定量的に説明いただけますと幸いです
河畑 今回は、支柱に座屈拘束ブレースを設置、アーチリブのブレースを座屈拘束ブレースに取替、アーチリブと補剛桁間に座屈拘束ブレース、及びアーチリブ基部に浮き上り防止構造(PCケーブル)を設置、終点側補剛桁端部の支承取替、アーチリブおよび支柱の当板補強などを行っています。鋼部材の補強は当板補強が一般的ですが、当て板補強のみでは、耐震性が確保できなかったため、座屈拘束ブレースによる免震も併用しているものです。
――現場は標高1,000mを超える箇所で、かつ谷あいであり、施工は非常に難易度が高いと思われます。どのような安全対策(足場も含めて)、簡便な補強材料・工法を用いて補強しているのか詳しく教えてください
河畑 アーチリブ全長にわたり、足場を設置し、安全性を確保しています。
――最終的に全体をどのような思想でどのくらいの量を補強していますか
河畑 座屈拘束ブレースによる免震補強を行い、当て板補強(耐震補強)の最大板厚t=22mmに収めています。補強量は当板が10t、座屈拘束ブレース60本などです。
















