第2回 スイスの先駆的な事例
超緻密高強度繊維補強コンクリートによる橋梁の補修・補強
3.スイスにおけるUHPFRCの新設橋への適用例
これまで、先駆的な構造材料である超緻密高強度繊維補強コンクリート(UHPFRC)の既設橋梁への補修・補強材としての適用例を扱ってきたが、この材料の性能を生かした分野として、新設橋への適用も進められている。新材料適用の理由は、先ず高強度で薄く作ることができること、したがって軽量かつ耐久性に優れた橋の架設が、比較的短い期間でできることが最大の長所と言える。
2015年ローザンヌ郊外のSebeillon駅近郊に架けられたマルティネ(Martinet)橋の設計方針は、従来のコンクリート橋、鋼橋の建設費を越えないこと、独自の景観を有すること、維持管理費が最小であること、温暖化防止のため建設資材の使用量が少ないこと、などであった。
上記の方針で設計されたのは、支間長15.4m、幅員2.5mのプレキャストUHPFRC部材1.7tf 9個からなるトラフ構造で、4隅にモノストランドが配置され、現場架設後にプレストレスが導入された(図-27/図-28)。この部材は、鋼製型枠によって工場で製作され、トラックで運ばれた。

図-27 マルテイネ橋断面図とクレーンによる現場架設。単位mm

図-28 モノストランドの緊張作業
ブリュービラー教授は提案された橋の外観を、無機質なコンクリート構造でも鋼構造でもないことを示すオルガニック構造と呼んでおられた(図-29)。なおトラフ桁下面には、横方向の剛性を高めるため、横リブが配置されている(図-30)。
これらの各セグメントは、工場にて型枠に流し込み後、7時間で脱型され、7日のシート養生の後、現場に運ばれた。この新しいタイプの歩道橋に対して、工場にて材料の流し込みテスト、大学にてプレキャスト部材の破壊試験、それに現場にて5tトラックの後輪を支間中央に載せた静的試験が実施された。静的試験による支間中央のたわみは、11mmであり、許容値の26mm以下であった。

図-29 マルテイネ橋のOrganic Web/図-30 桁下面の横リブと落書き
図-31の青いシャツがブリュービラー先生、隣が山口大名誉教授の宮本文穂先生である。なお、鋼製型枠の床版上面部には目粗し面が備わっており、滑り防止面が得られることから無舗装であった。なお、この橋のトラフ右上端にはLED照明が埋め込まれており(図-27)、路面を明るく照らすとともに、周囲に独特の雰囲気をかもし出している(図-32)。

図-31 マルテイネ橋の路面/図-32 夜のマルテイネ橋、右はスイス鉄道
次に示すのは、2018年に建設された橋長26.5m、幅員2.0mのブーヴェレ(Bouveret)橋であり、レマン湖南側フランスとの国境に近い町ブーヴェレ(図-12、レマン湖モントレー対岸)の州道の上の歩道橋として、対象形のプレキャストUHPFRC部材12個で構成されている(図-33)。このセグメントの床版・ウェブの厚さは50mmで、モノストランドが配置される隅角部は140mm、トラフ構造上端は126mmである。なお、両側側面には、軽やかなイメージを作り出すためにスリットが設けられており(図-34)、全体的にスレンダーな印象を与える。

図-33 ブーヴェレ橋側面図

図-34 ブーヴェレ橋断面図とセグメント側面
架橋地点には小学校があり、通学時の安全確保と橋を渡っての校庭への利便性が架橋の目的であった。発注者は、本橋の美しく近代的なデザインと、今後の維持費がミニマムという点を考慮して、この歩道橋の採用に至ったとのことである。この橋は、校舎の2階につながり、そこから車いすなどはエレベータで1階に下りられる(図-35)。なお、下床版には横リブが配置されている(図-36)。

図-35 ブーヴェレ橋全景/図-36 下面の横リブ
架設にあたっては、工場で製作されたセグメント12個を、工場にてPCストランドで一体化したうえで、長さ26.5mの主桁を80km離れた架設地点までトラックで運搬し、夜間に通行止めを行ない、道路上の2台のクレーンで総重量20tonの主桁を相吊り架設した(図-37)。
主桁の架設に要した時間は6 時間であった。工期はセグメントの製作を含めて3ヶ月、2018年に完成した。本歩道橋の特徴として、維持管理および経済性から支承、伸縮装置は設置されていないとのことである。筆者は本橋を、i-ギルド補修・補強調査団2019とともに訪れたのであるが(図-38)、本橋の総建設費が、2019年スイスフラン換算で2,600万円ということに対して、藤野陽三団長がひどく驚かれていたことが忘れられない。ただ、筆者は日本での施工の場合、どのような落橋防止構造にすればよいだろうと帰りのバスで空想していた。

図-37 2台のクレーン車による夜間架設/図-38 ブリュービラー先生と調査団
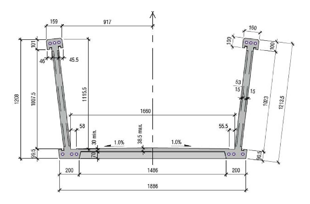
次は、レマン湖の避暑地、モントレーの駅から西へ徒歩7分のスイス鉄道上に架かる歩道橋を紹介する(図-12参照)。この橋は、長さ22.5m、幅1.65mのチョウメニー(Chaumeny)跨線橋であり、レマン湖側は、高さ9mのUHPFRC製階段とY字形橋脚を備えている(図-39、図-40、図-41)。

図-39 チョウメニー橋側面図


図-40 チョウメニー橋断面図/図-41 チョウメニー橋全景、右は橋脚断面図
UHPFRC製橋脚には、使用性能を高めるためにPCストランドが配置され、2020年10月、現場にトラックで運ばれ、前もって現場で打ち込まれたUHPFRC基礎上に、夜間架設された。橋桁部のセグメントは、5.0m×4個+3.0m×1個の長さで工場にて製造され、PCストランドで一体化して、現場にトラックで運搬され、夜間AM1:00~3:00の2時間で2台のクレーンで架設された(図-42)。
床版下面には、横方向の剛性強化のため、横リブが配置されている。なお、橋桁および階段歩道部の表面には、型枠に滑り止め処理が施され、さらにクロスが貼られていた。さらに経済性の観点から、支承は設置されていない。橋台上の橋桁は、橋台上に固定設置され、橋脚上の橋桁はその上に固定されているものの、弾性的な橋脚が温度変化などによる変位に対応している(図-43)。

図-42 チョウメニー橋 橋脚(右)および橋桁(左、中央)の夜間架設

図-43 RC橋台に固定された橋桁および弾性的な橋脚に固定されたもう一方の橋桁
ここで、本橋の終局限界状態のFEM応力分布を示してみよう。図-44に見るように、トラフ桁に配置されたPC鋼材+UHPFRCが引張応力を受け止め、限界応力基準(SIA2052)を満たしている。なお使用限界状態では、引張領域は皆無であり、長期の使用が保証されている。

図-44 FEM解析による終局限界状態の応力分布
元々、この場所には、鋼製歩道橋が架けられていたということであるが、橋桁の劣化に加えて、列車とのクリアランス条件で、桁下面を1.0m上げる必要があった。設計方針は、マルティネ橋と同じであり、特に将来の維持管理費節減、斬新なデザインと架設条件の容易さが評価され、この設計案が採用された。新しい橋桁・橋脚・階段は、こげ茶色に統一され、周囲の緑と良く調和し、住宅街の景観にすっかり溶け込んでいるという印象であり、付近の住人、特に子供達に人気があるようであった。
4.あとがき
本稿では、スイスの超緻密高強度繊維補強コンクリート(UHPFRC)の補修・補強分野への適用例、新設橋への適用例について紹介した。スイスでは、この材料の進化がほかの国を圧倒していて、特に開発の第1人者であるブリュービラー(Bruehwiler)教授は、隣国のフランス、USA、中国などへ精力的に出掛けられ、UHPFRC発展のために活躍しておられる。本稿の第2章でも取りあげたように、スイス連邦交通省もこの材料の有益性を評価し、今後、ますます使用例が増えていくと推察される。そうした中、本年8月25日(金)には、大阪大学中之島センターにおいて、ブリュービラー教授、松本高志教授、東山浩士教授らによるワークショップが開催される予定である。
<ハイブリッド形式>EUと日本における構造物の補修に関するワークショップin大阪 | 一般財団法人 災害科学研究所 (csi.or.jp)
最後に、筆者が本年6月初めに、J-THIFCOM技術研究会幹事の今井隆氏と共に、ブリュービラー教授をスイスに訪問した際には、施工現場への引率など非常にお世話になった。感謝を申し上げる。なお、第2章、第3章の図・写真の多くはブリュービラー教授のご提供、一部はi-ギルド補修・補強調査団2019、それに筆者と今井氏の撮影によるものである。




























