③衣浦大橋(上り線)の上・下部工の耐震補強工事の設計・施工について
若手・中堅インハウスエンジニアの本音 ~マネジメントしつつ専門的知見を得ていくために~
はじめに
先回は愛知県の地方機関における橋梁現場担当の現状について紹介し、思うところを述べた。次いで同僚の渡邉さんには既設橋梁の補修・補強において、具体的な業務を通して取り組んでいることなどを紹介し、考えを述べてもらった。その他にも私の信頼する同世代の同僚たちにも紹介いただくつもりでいたが、あいにく都合が合わなかったため、またの機会としたい。
今回は私が10年ほど前に初めて既設橋梁の補修・補強の設計・施工を担当した、衣浦大橋(上り線)の上・下部工の耐震補強工事について紹介し、思うところを述べたい。
衣浦大橋(上り線)の概要
衣浦大橋(上り線)は、愛知県の衣浦港にかかる、昭和52年竣工の橋長413.6m、臨海工業地帯と西三河地方の工業地域を結ぶ、緊急輸送路上の重要な橋梁のひとつである。昭和30年に架設された2車線の鋼ゲルバートラス橋の南側に新橋として架設され、旧橋を下り線、本橋を上り線として増大する交通に対応している。ちなみにこの旧橋は日本で初の海上橋で(両岸が埋め立てられる前の)当時は東洋一の橋長であったと聞いている。
新橋の構成は2 径間連続鋼床版箱桁、3 径間連続鋼床版箱桁、単純鋼床版箱桁からなり、橋脚は鉄筋コンクリート製単柱式5 橋脚、支承条件は橋軸方向に固定・可動、橋軸直角方向はすべて固定である。基礎は鋼管井筒基礎である。
過去の補修・補強工事
平成15年にP5 橋脚上のローラー支承のローラーが逸脱した。急遽、当時愛知県の防災アドバイザー(名古屋大学教授)を中心とした委員会が構成され、検討の結果、損傷のあったP5 橋脚、A2橋台上を同年、翌年にはP2 橋脚、A1 橋台上の同形状のローラー支承をタイプB(H14道示のレベル2 地震に耐えられる構造)の可動支承(BP-B沓)に取り替えている。
さらに現場調査したところ、鋼床版Uリブの突合せ溶接継手部に疲労亀裂が、コンクリート橋脚の横梁部にアルカリ骨材反応による亀裂が多数発見された。これらの補修方法も委員会で検討され、鋼床版Uリブ継手部の再溶接補修工事、コンクリート橋脚の横梁部は、鋼板巻立補強工事を実施している。これらの紹介は別の機会としたい。
耐震補強について
当橋梁は「あいち地震対策アクションプラン」の「上部工対策」橋梁としてリストアップされ、「落橋防止システム」が下部工より先行して設計済みであり、工事発注を控えていた。下部工補強は未定であったが、その後「下部工対策」橋梁として追加され、上部工対策工事の翌年から工事を実施することとなった。これらについて併せて紹介する。
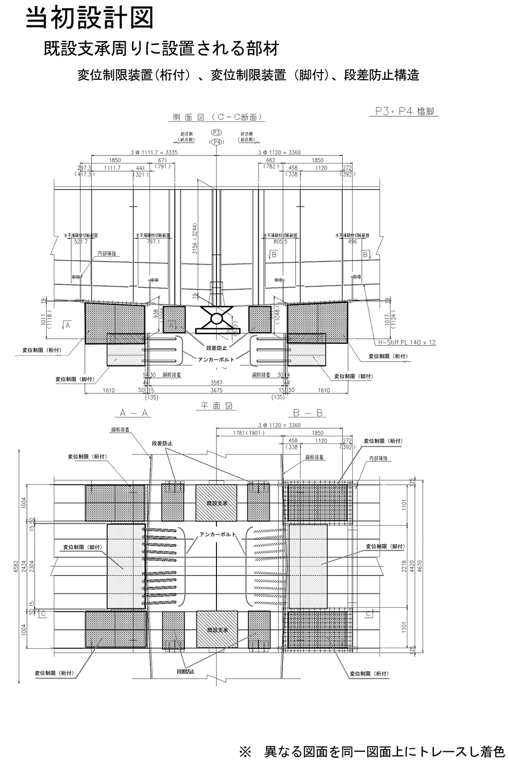
上部工対策の設計変更
上部工対策の当初設計は、桁端部へ落橋防止装置を設置するとともに、既設支承をタイプA支承(H14道示のレベル2 地震に耐えられない構造)と位置付け、既設支承を残し、支承周りに変位制限装置を取り付け、支承部をレベル2地震に対応させる設計であった。
しかし、既設支承の周りに変位制限装置が多数取付けられ、繁雑になり、今後のメンテナンスがしにくくなること、同時に施工予定であったアルカリ骨材反応対策の橋脚梁補強鋼板に変位制限装置のアンカー取付のために大量に孔をあける構造であったこと、全体で18基ある支承のうち既に10基がタイプB支承に取り替えられていたこと、設計中であった下部工の耐震補強設計において十分な補強が可能である見通しが得られていたことなどから、残りすべての支承もタイプB支承に取り替える構造に変更する方針とした。
費用比較すると支承取替が経済的となった。これは支承あたりの反力が大きく、変位制限装置が大掛かりなものになったこと、架設当時に水平力を考慮されていない鋼箱桁内部に補強部材が必要となったこと、取り替える支承がゴム沓でなくBP-B(鋼製)沓であったことなどが考えられる。これに加えてアルカリ骨材反応対策の橋脚梁補強鋼板に孔を開けない分、設計上鋼板厚を薄くできたメリットもあった。
一般的に愛知県の管理する多主桁(鋼、コンクリート)橋においては、壊れていない既設支承を多数取り替えるより、変位制限装置を取付けて機能を補完するほうが合理性、経済性に優れると思われる。この傾向から対策を画一的に捉え、本橋の既設支承を取り換える発想に至らなかったのかもしれない。またアルカリ骨材反応対策の設計を別のコンサルタントが担当していたこともあったのかもしれない。
橋脚梁補強の施工は、供用中の橋脚梁に密に配筋されている鉄筋を避けて、アンカーの定着長を確保して削孔をする。すべてのアンカー削孔が完了してから、孔の配置をトレースし、設計再計算して補強用の鋼板厚を決定し、製作図を起こす。鋼板厚が変われば鋼材メーカーに材料手配して、鋼材納入後に工場にて補強鋼板を製作する……。今思えばそんなことからも施工困難と判断すべきとわかる。
設計委託の成果があるとはいえ、工事発注前には実際の施工とその後の維持管理も考慮した十分な検証も必要である(当たり前だけど……)。当該橋梁の設計の場合は、補強設計個々の目的自体は満たされていても、橋全体を総合的に俯瞰する管理者の視点ができていなかった。設計上では一見マニュアルを満たし、間違いではない。しかし実際にはとても施工できないし、管理できない構造となってしまうこともある。
注)平成29年改訂の道路橋示方書からは支承のタイプA、Bの区別は無くなっている。






























