1日3~4枚の床版を床版取替機で撤去・架設
①床版取替機による床版撤去・架設
箱根側の鈑桁部(P4-3~P4-6)は、民地および西湘バイパス本線と近接していることに加えて、生活道路となっている市道と交差しているために、クレーンを設置するヤードと作業半径を確保できなかった。そのため、IHIインフラ建設が開発した床版取替機(右写真、大柴功治撮影)をNEXCO中日本として初採用(IHIインフラ建設としても本施工では初採用)した。
床版取替機は、橋軸方向に移動をする門型クレーンを設置して床版を撤去・架設するもので、クレーンの作業半径が確保できない、または幅員が狭い箇所で施工が可能という特徴を有している。NEXCO中日本は「生活道路の市道を通行止めにできず、安全を最優先した」と採用理由を説明するとともに、「今後、上下線のどちらか一方を通行止めにすることが難しい重交通路線での施工で床版取替機が役立つと考えている」という。
IHIインフラ建設では、本工事にあたり2019年3月に千葉県市原市の三信工業敷地内で、床版取替機の試験施工を行っている。現場と同じ縦横断勾配をヤードで再現して、床版取替機の組立解体、移動、設置、重量物を搭載しての電動チェーンブロックの運転を実施して、施工確認をした。
施工は、まず床版取替機の設置スペースを確保するために、鈑桁部P4-3(厚木)側の床版3枚をランプ内のヤードに設置した250tクレーンで撤去および架設している。床版取替機を4日間で組立て、5月21日からP4-6(箱根)側へ向けて、床版取替を開始した。
床版取替機の組立て
切断済みの既設床版と壁高欄を床版取替機の油圧ジャッキを用いて剥離して1日に3~4枚を撤去した後、上フランジ上面のケレンを行い、変性エポキシ樹脂塗料2層(内面塗装系D4)の塗装を行った。ケレンは、住宅地が近く飛散防止のため、水性塗膜剥離剤(アクアインプラス)を用いたEPP工法(エコ・ペイント・ピーリング工法)で施工している。
既設床版の撤去
鈑桁部のケレン(左)/箱桁部のケレンと塗装(右2枚)
撤去翌日にプレキャストPC床版(橋軸方向約1.7m×橋軸直角方向約5.5m、重量約8t)を同数架設していき、次ぎの撤去・架設に備えて床版取替機の移動、設置をしている。その作業を繰り返して、6月3日に鈑桁部全29枚の架設を完了した。
新設床版の架設(大柴功治撮影、以下「*」は同)

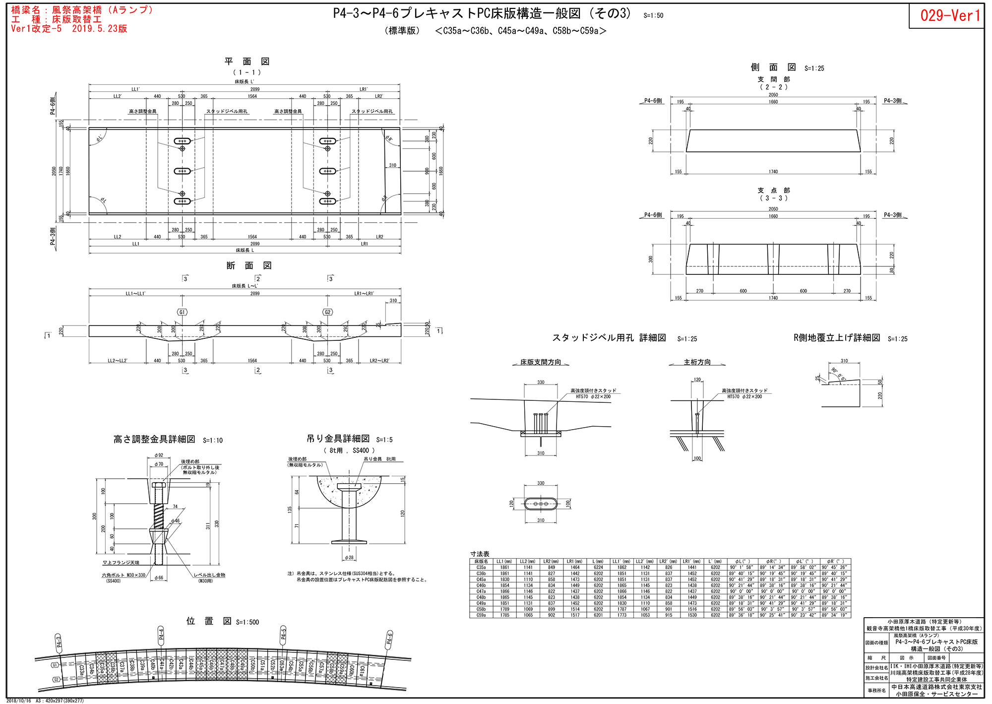
鈑桁部のプレキャストPC床版(標準版)構造一般図
床版の撤去・架設にあたっては、施工箇所がランプ橋で幅員が狭く、床版運搬トレーラーが床版取替機の下まで進入できないため、手前にリフターを設置してトレーラーから床版を吊上げ、台車に積み替えて約30mを運搬して、床版取替機に設置する対策をとった。
トレーラーから台車に積み替えて床版取替機まで運搬した
本現場での床版取替機のストローク幅は約12mとしていた。ストローク幅を伸ばせば、1日の撤去・架設枚数を増やせるが、「工期内での1日の撤去・架設枚数や荷重を考慮して今回は約12mとした」(IHIインフラ建設・IHIインフラシステムJV)という。
②クレーンによる床版撤去・架設
箱桁部(P4~P4-3)はランプ内のヤードに設置した250tトラッククレーンで施工している。5月15日からP4-3側からP4(厚木)側に向けて1日7~8枚の既設床版の撤去を行って19日に完了させた後、23日から新設床版の架設を始めた。1日の架設枚数は撤去枚数と同数で、5月30日に箱桁部全32枚の架設を終えた。
既設床版の撤去
新設床版の架設(*)
箱桁部はR=60mの曲線橋で視距拡幅があるため、プレキャストPC床版のサイズと重量は橋軸方向約1.7m×橋軸直角方向約5.5m~6.8m、約8~9tとなっている。

箱桁部のプレキャストPC床版(標準版)構造一般図















