吉野川大橋 最大支間130mは世界最長クラスの張り出し長
P4~P9が剛結構造、その他は機能分離沓を採用
――特徴ある形式あるいは工法適用の橋梁やトンネルについて
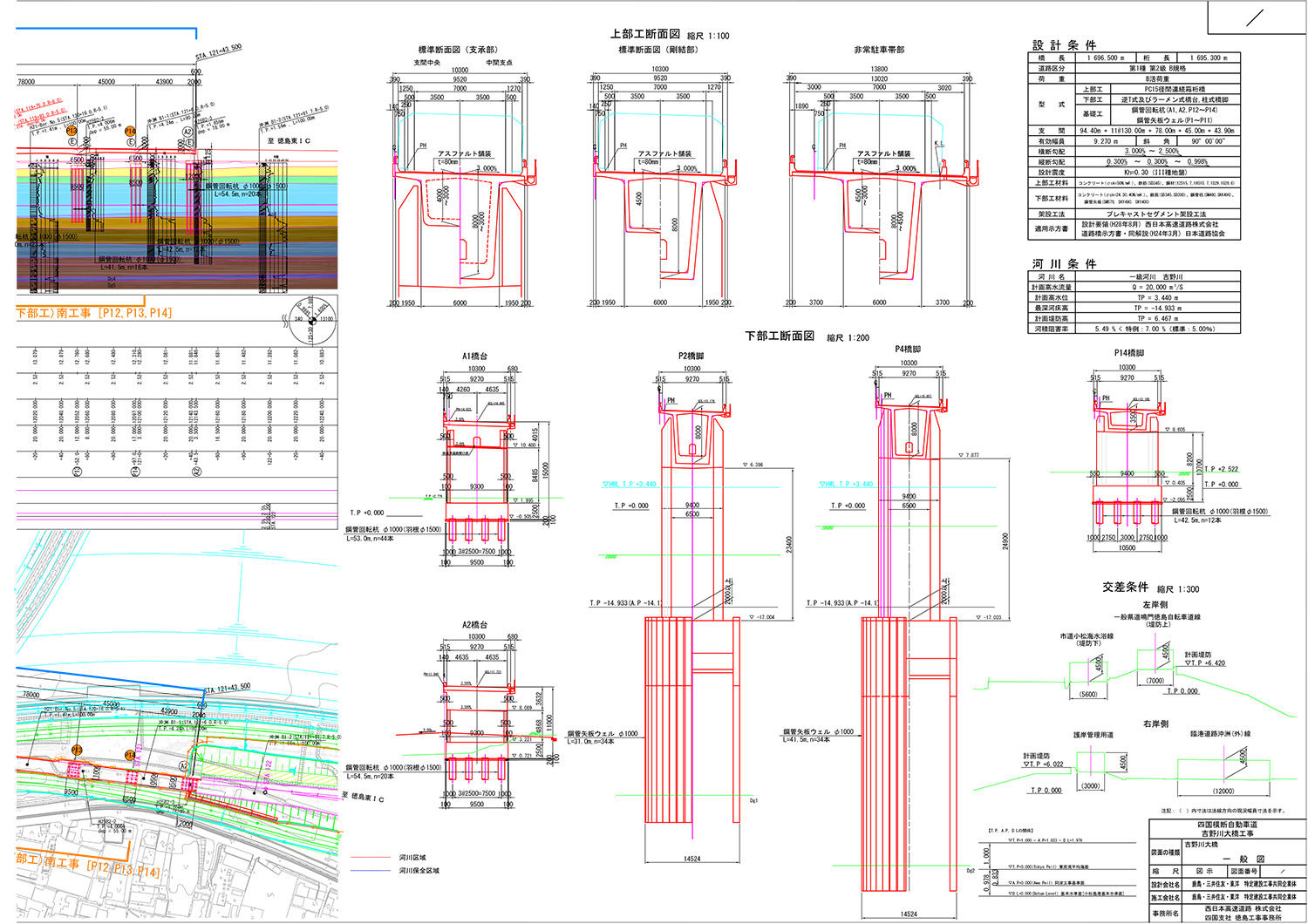
浦 吉野川大橋があげられます。同橋は吉野川河口部に建設が進められている、橋長1,696.5mのPC15径間連続箱桁橋です。現在は下部工が完了し、上部工の一部を架設中です。
構造的特徴は吉野川渡河部の環境保全に配慮した橋梁形式を採用したことです。まず、吊橋や斜張橋のようなケーブルを伴う形式については、シギやチドリなどが、吉野川の中州へ餌を取りに飛来しており、その事故を防ぐためにもかけられません。よって、鋼桁やPCの箱桁形式となりますが、貴重な水生生物へ配慮する必要があります。鋼橋では(FC船などによる)一括架設を伴いますが、それをやろうとすると河床を大きく浚渫する必要が出てくるため、水生生物に大きな影響が懸念されます。そのため桁高が低く抑えられて、浚渫作業も比較的少ないPC箱桁が選ばれました。河積阻害率の問題もありますので、支間長を長くとり、河川内橋脚は11基と最小限にしました。
また、耐震性を確保するため、P4~P9橋脚については剛結構造としています。そのほかの橋脚については、鉛直方向に荷重支持板(すべり支承)、水平方向にゴムバッファーを用いた機能分離型支承(ビービーエム製)を使用します。防食性能を高めるため支承部の鋼材はAl-Mg溶射を施し、トップコートにフッ素樹脂塗装を施す二重防食を採用します
高い耐久性を確保するため、塩害に強い鋼材(エポキシ鉄筋、エポキシ樹脂被覆PC鋼より線等)、フライアッシュコンクリートの採用にも踏み切っています。
――同橋の最大支間は
浦 最大支間は130mに達します。桁橋のプレキャスト橋として世界最長級の張出し長であり、国内最長級の送出し架設となっています。また、主に下部工は作業台船を使用した、河川内施工を行い、上部工架設は、河川内(浚渫)を極力使用しない架設工法を採用していることです。現在は上部工を全面展開しています。
基礎形式は鋼管矢板井筒形式を採用しています。基礎深さは最大41.5m、フーチング幅は14.5m、橋脚は全幅で9.4mに達します。下部工も支間長を最大130m飛ばすなど、河川内にできるだけ橋脚を配置しないようにしました。橋脚形式は海上部でRC柱式橋脚、陸上部で橋台は逆T式及び、ラーメン式橋台を採用しました。下部工は渇水期のみの施工としていましたが、昨年6月以降は、少しでも工期を確保するため、関係機関と協議を行い各種安全対策等を行った上で、出水期においても施工が可能となりました。打設ロットは、1ロット約5mピッチで施工しています。
6項目の環境配慮事項をチェックしながら施工
盤ぶくれ対策のため重量コンクリートや鉄筋スタッド使う
――下部工施工中の環境への配慮は
浦 シルトフェンスなど汚濁の拡散防止には配慮しました。また杭打ち時の騒音や振動に配慮し、防音シートを設置するほか、工事稼働日に3か所のねぐら付近において騒音・振動レベルを調査して、シギやチドリなどへの影響を見ながら施工しました。同様に両岸部の騒音測定も行い、周辺家屋への影響をチェックしながら工事を進めました。
これは、騒音だけでなく、水質など定められた項目(騒音・振動、水質、地形、底生生物・底質、鳥類、魚類)についてすべてモニタリングを施しながら現在も施工を進めています。
――下部工の施工上の特徴は
浦 現場の土質調査の結果、掘削底面下に不透水層が存在し、不透水層下層の透水層で被圧地下水を確認しました。そのため井筒内掘削および排水を行うと上載圧が減少することにより被圧地下水の圧力により盤ぶくれが生じることが懸念されました。その対策として、底版コンクリートを重量コンクリート(粗骨材に銅スラグと電気炉の酸化鉄スラグなどを混ぜ合わせ、密度や比重を高くした。27kN/㎥)に変更し、底版に鉄筋スタッドを配置することで抵抗力を増加する手法を採用しました。
もう一つは、軟弱地盤でかなり支持層が深く、鋼管長さが41mで、さらに海面までが24mほどありますので、60mの長い杭基礎を打つ必要がありました。これが苦労しました。全周で30~40本必要ですが、鉛直に打てるよう注意深く施工しました。鋼管矢板は全長を約2回に分けて打ち継ぎ、溶接で繋げています。
耐震対策でP4~P9までは剛結構造にしていますが、解析を行うと基礎と橋脚の剛性のバランスで設計が決まってきていますので、要望としてはいかに本数を少なく、剛性のバランスを保つかということに苦労して実施設計を行いました。基礎があまり強くなってしまいますと、橋脚の負担が大きくなり持たなくなってしまいますので、なるべく全体の径を小さくしようということで、強度が強い鋼管を使いました。コンクリートも通常であれば24~30N/㎟、鉄筋はSD345を使いますが、今回は40N/㎟の高強度コンクリートおよびSD390を用いて、耐震上のバランスを取りました。
――1ロットあたりの打設高は
浦 5m程度です。1ロット当たりの施工日数は平均3週間ほどです。
低熱ポルトランドセメントと石灰石砕石を組合わせてひび割れを抑止
下部工 CP船航行のため浚渫が必要
――打設時のコンクリートの品質管理は
浦 今回は充実断面で、6m×9.4mの橋脚柱になりますので、低熱ポルトランドセメントと石灰石砕石を組み合わせて温度応力対策を行い、ひび割れリスクを低減しました。石灰砕石は通常の砕石よりも熱による変形が3割ほど小さく、コンクリート温度上昇時に通常の砕石よりも変形しにくくなるので、温度ひび割れに対して有効です(通常の砕石の線膨張係数 10μ/℃ → 石灰砕石 7μ/℃)。
保証材齢も通常の28日から2倍の56日に設定しています。倍にすることにより、40N/㎟の強度をゆっくりと発現させることができるので、セメント量を少なくし、コンクリートの発熱量を下げることができます。
こうした対策でも足りない箇所は鉄筋量を増やすなどして対策しています。通常はかぶりに近い個所にひび割れ抑止鉄筋を入れることが効果的なのですが、架橋地が海の上なので防食的に難しいです。そのためコンクリートからのアプローチを施しました。


――打設の具体的な手法は
浦 CP船や台船で生コンや鉄筋を運び、橋脚の周囲に配置した構台の上に載せて施工していきます。少雨程度なら施工しますが、やはり風で止まることが多かったですね。うねりがあると船は難しいですから。また、CP船は材料を満載すると喫水が深くなることから最低でも4.5mの水深が必要です。一方、同地は砂がたまりやすいため、航路を確保するため適宜地形を測量し、浚渫することが必要でそれにすごく苦労しました。
――同じ地形でも潮位によって打設可能か否かが決まってくるのでは
浦 そうです。ですから潮目を見ながらいつ出港していつ帰るかという工程を組むことも大切でした。
――柱頭部も充実断面ですか
浦 はい。橋脚から延びる鉄筋、箱桁の橋軸・橋軸直角方向の鉄筋を配置している個所にコンクリートを打設しました。
――相当な過密配筋ですがここはセグメントと同様フライアッシュを用いたコンクリートを打設するのですか
浦 同部分は低熱ポルトランドセメントと普通ポルトランドセメントを使い分けて打設します。CP船のセメントサイロが限られておりフライアッシュを貯めておくタンクがないためです。高さ8mを3ロットに分けて打設しました。鉛直の鉄筋はD51、橋軸方向の鉄筋はD25をそれぞれ用いました。
――河積阻害率や台風などの影響に対する配慮は
浦 橋は最下流に位置しているため、河積阻害率は問題ありません。台風対策としては、河川管理者と協議して桟橋など仮設物を撤去し、構台などをラッシングして対応しています。1回台風が来ると工事が2週間程度止まりますので、工期的に非常に苦労しています。
上部工製作 ショートラインマッチキャスト方式を採用
フライアッシュを採用、本製作前に実物大施工試験
――さて、上部工ですがプレキャストセグメントの1ブロックごとの長さ及び重さは
浦 1ブロックごとの長さについては桁高(最大8m~最小4.5m)により異なり、2.25~3.5mで、重さは66.8t~99.9tです。ブロック総数は489個です。架設桁架設用(沖洲ヤードで製作)分が287個、エレクションノーズを用いた架設用分(津田IC付近のヤードで製作)が202個です。全体で概ね6割程度製作が完了しています。1ブロック当たりの製作時間は7日程度となっています。
また、ヤードの制約条件からショートラインマッチキャスト方式を採用しています。1セグメント分の製作台で1つずつ製作するショートライン方式と既に製作されているセグメントの端部面を型枠として利用し、次のセグメントを製作するマッチキャスト方式を組み合わせた工法です。この方法を採用することで、本現場のような限られたヤードでも曲線桁の製作を可能とすることができました。

吉野川右岸にある第一ヤード(井手迫瑞樹撮影)


(左)ショートラインマッチキャスト方式を採用(現場説明の掲示板より)
(右)マッチキャストして作られた桁の断面(井手迫瑞樹撮影)
――セグメントにはフライアッシュコンクリートを採用しています。NEXCOとしては極めて珍しいですね
浦 四国地方で実績のある四国電力の西条発電所で発生したフライアッシュ(FA)を外割で64㎏/m3添加したコンクリートを採用しています。
フライアッシュを用いることで期待する点は長期強度の向上、水密性・遮塩性の向上などです。実際に同発電所で発生したFAは国土交通省、自治体問わず多くの実績を有しており、長期品質も問題が出ていないことから地元産業廃棄物の有効利用の面なども考慮して高炉スラグに代わって用いています。
但し、施工の際は、粉体量が多く粘り気が強いため、高性能AE減水剤を使用して対応しています。また、強度発現までの長期養生も必要であるため、ここでは3M社製のコンクリート給水養生用水搬送シートや同社製の保水養生テープを使用した養生を行っています。
今回、フライアッシュをNEXCOの新設桁で初めて用いるため、本製作前に実物大の試験ブロック(高さ8m×幅10m)を1つ作成し、施工性能試験を行いました。そのうえで配合も最終決定しました。








































