渋滞対策に早急に取り組む
7箇所の交差点でレーン設置や改良進める
――次に進捗中の各事業路線の目的と概要、現況をお答えください
林 神戸西バイパスにおいては、専用部はNEXCO西日本が整備しますが、一般部は兵庫国道事務所が整備を進めていきます。一般部の整備は概ね100億円程度を要する見込みです。
――渋滞対策は
林 道路ネットワークの整備推進と並行して、現状で発生している渋滞対策に早急に取り組んでいく必要があります。特に企業の誘致という観点では、高速道路ICからの時間的距離は死活的な影響を与えます。加えて、渋滞は緊急車両の遅延にもつながるため、その解消は急務と言えます。
神戸市内には、市が管理する道路、国が管理する道路の渋滞個所を合わせると55箇所の渋滞ポイントがあります。この解消に向けて、国においても国道175号などの拡幅・バイパス整備に取り組んでいただいています。神戸市も長坂垂水線の小束山6丁目交差点、舞子多聞線の大門交差点、神戸三田線(有馬街道)の皆森交差点など7箇所の交差点で左・右折レーンの設置や交差点改良等を行っていく方針です。
小束山交差点 引き続き渋滞解消の検討進める
皆森交差点 皆森~谷上の容量増を検討
――個別の渋滞対策事業の詳細とその進捗状況を教えてください
林 長坂垂水線の小束山6丁目交差点付近は舞多聞ニュータウンとなっており、大規模店舗も点在しています。これまでに周辺店舗と連携してソフト対策を行うとともに、平成29年度に交差点改良を行いました。その結果、渋滞対策に効果があったと認識しております。しかし、依然として南行の渋滞が休日の時間帯により発生しているため、引き続き渋滞対策の検討を進めています。また、神戸西バイパスは当交差点の延長上にあるため、その効果も期待しています。
舞子多聞線の大門交差点(右が現況写真)も同様に南行に渋滞が発生しているため、第二神明道路の真下にある歩道橋の階段を撤去し、若干歩道を狭めて南行右折レーンの設置を行います。なお、同交差点についてはすでに工事着手しています。
皆森交差点は、新神戸トンネルを抜けて神戸三田線(通称有馬街道)につながる交差点です。毎朝、東向きの渋滞が恒常化しているため、皆森~谷上(北神急行電鉄・神戸電鉄谷上駅付近)間の容量を増やすための検討をしています。
西盛口交差点は県道22号神戸三木線東行きと県道83号平野三木線北行きで渋滞が顕著な交差点で右折レーンを設置する交差点改良を行う予定です。
王塚台交差点は県道21号神戸明石線と市道が交差する個所にある交差点で、慢性的な渋滞を生じています。そのため、東行き左折レーンの設置を伴う交差点改良を実施する予定です。
最後に有野大橋の拡幅事業があります。
有野大橋では右折レーン確保のため橋台・端桁を増設
中津橋・宝田養老橋を架け替え
――どのような内容ですか
林 神戸市北区有野町有野の五社北交差点の東側、2級河川有野川に架かる橋梁です。ここは長年の渋滞ポイントで、同橋は右折溜まりがなく、西行きで渋滞が慢性化しているため、西行き右折レーンを新たに設置するものです。そのためには橋台を拡幅し、橋桁を拡幅のために外側へ新たに足す必要があるため、用地買収を進めています。計画では、平成30年度および31年度の2年間で拡幅工事を完了する予定です。

有野大橋の現況
――計画・設計・施工中の主な橋梁およびトンネルは
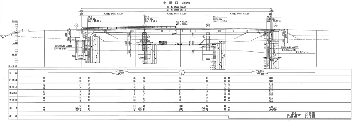
林 神戸市西区平野町中津の1級河川明石川に架かる中津橋の架け替えを行いました。
架替え橋は橋長84m、全幅員10.5mの鋼3径間連続合成鈑桁橋で耐候性鋼材(裸仕様)を採用しています。旧橋は歩道もなく幅員も狭小でしたが、それを改善し、歩道も設置しています。

中津橋架替側面図
現在新橋の架替えは完了しており、6月末までに旧橋の撤去も完了する予定です。新橋架設の元請はショーボンド建設㈱、岩田地崎建設㈱、協同建設㈱です。
――宝田養老橋の架替えは
林 同橋は妙法寺川の河川改修に伴うものです。河川流量を増やすために河床の掘削を行っていますが、旧橋は橋長13mと短いにも関わらず、橋脚が河川内に1本ありました。この河川断面を阻害する橋脚を撤去するため、橋長は同じながらPC単純プレテン床版橋に架け替えるものです。また、隣接する人道橋も同時に撤去し、新橋に歩道も設置しています。元請は港建設㈱です。
新神戸トンネル以来の新設 有馬口トンネル
山裾の斜面に沿う形状 屈伸中の偏土圧を注意
――橋梁以外では
林 (仮称)有馬口トンネル築造工事があります。県道15号神戸三田線の北区有馬町唐櫃に計画されている延長639mのトンネルです。同トンネル近傍は有馬川と急峻な斜面に挟まれた狭隘な2車線道路で、異常気象時通行規制区間でもあります。1日2万台超の交通量があるにもかかわらず、幅員は8mと狭く、大型車の擦れ違いが困難であることや歩行が危険であること、過去に災害による長期の通行止め等もあったことから、現道拡幅およびトンネル新設によりバイパスする計画で整備を進めています。
工事を進める有馬口工区(唐櫃IC~有馬口交差点)1,560mのうち、東側の現道500m区間については拡幅工事を完了しており、西側の1km超のバイパス区間については、平成30年度からトンネル掘進も含めて施工を始める予定です。
(仮称)有馬口トンネルの起点(左)および終点(右)の現況写真

(仮称)有馬口トンネル平面図


(仮称)有馬口トンネル地質縦断図および標準断面図
――トンネル掘進上の技術的な課題は
林 山をくり抜くというよりは、山裾の斜面に沿う線形であるため、掘進中は少し偏土圧がかかることは気にしています。地質によってはトンネル下部にインバート断面が必要な箇所も出てくる予定です。神戸市では新神戸トンネル以来のトンネル建設なので、技術の継承という点でも大きな意味を有していると考えています。
――湧水や破砕帯は
林 一部で確認されていますが、現状では施工上重大なものには至っていません。引き続き慎重に確認しながら適切に掘進していく必要があります。
――市独自の技術・材料の活用は
林 現在では一般化しましたが、神戸市は全国に先駆けて下水道焼却灰入りのアスファルト合材を使用しています。フィラー材としての石灰岩粉末の代替として使用したもので、平成4年から調査検討を開始し、13年12月に事業化しました。
【関連記事】
阪神高速技術の新技術・新材料 ①ドクターパト 規制速度で走行しながら1台で舗装や床版、高欄、遮音壁、標識柱などを点検
阪神高速技術の新技術・新材料 ②デンカフセグラス 繁茂する草の防除を効率的に行う材料
阪神高速技術の新技術・新材料 ③DK-ピタットエイド 現場で点検しながら、30分程度の時間で応急補修














