
大規模更新の床版取替において 迅速な撤去および架設が可能
IHIインフラシステム 撤去~架設を一括施工できる自走式新型床版取替機「Sphinx(スフィンクス)」を開発
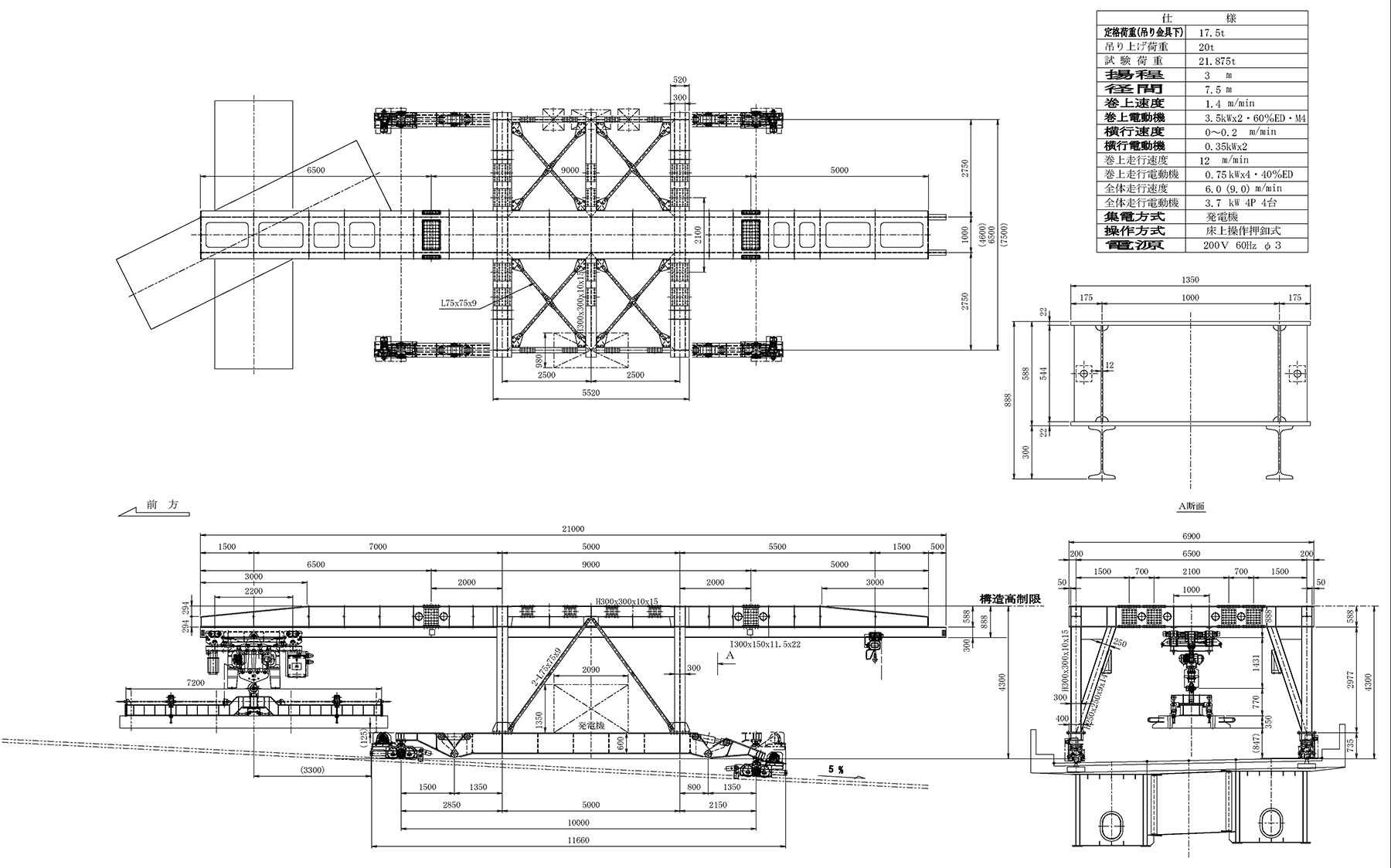
IHIインフラシステムは、大規模更新の床版取替用途に、既設床版の引き剥がしから、撤去、運搬、積込み、新床版の荷取り、運搬、床版の水平旋回、架設におよぶ一連の作業を全てこなすことのできる自走式新型床版取替機「Sphinx(スフィンクス)」を開発した。装置高は4.3mと低空頭で、立体交差部など、上空に障害物がある箇所でも施工可能であり、なおかつ全幅員の床版パネル(幅14m×長さ2m、最大吊重量17.5t)を撤去、架設できることが特徴だ。機体重量も47tと軽量で、合成桁などの床版取替においても桁への負担を少なくでき、補強量を減らすことができる。20㎏レールを敷いてその直上を最速9m/分で自走することができる。±5%の縦横断勾配にも対応可能だ。クレーンとしての操作(巻上げ、吊荷移動など)や運搬走行は全てリモート可能で、施工を大幅に効率化、省人化できる。「条件によっては、1日10枚程度の架設または撤去が可能で、それ以上の作業効率の向上も期待できる」(同社)としている。
従来、床版を撤去・架設する際は、各種クレーンを使うことが多い。しかし、空頭が低い構造物(門型標識柱)や高圧電線が横過する箇所やIC・JCTなど複雑な場所では、そうしたものは使い辛かった。また、通常の使用においても、橋長の長い橋梁では旋回半径を超えれば、据え付け直さねばならず、加えて機体重量が重いことから合成桁においては桁の補強を大量に必要するなどの手間を必要とした。
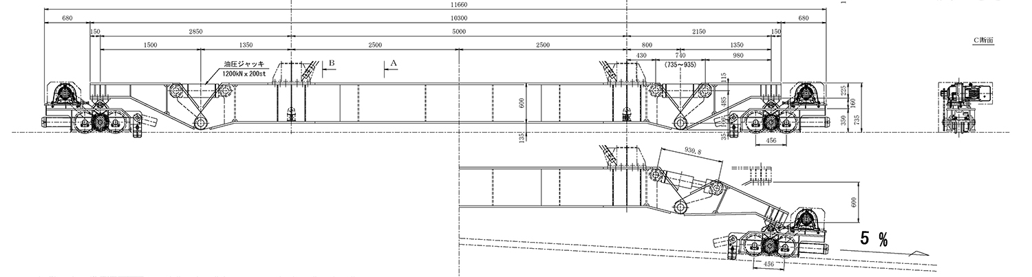
スフィンクスはそうした既設桁の補強や施工における手間、空頭制限などと言った課題を解消するために作られた機体と言える。高さ4.3m、全長20.5m、重量47tというコンパクトかつ軽量な機体で、装置幅は、床版の幅員に応じて4.6~7.5mの間で事前調整可能だ。同機は事前に現場条件に合わせて敷設したレールの上を4点8輪の車輪で自走するため、アウトリガーなどを伸ばす必要もない。レールを敷設することでただでさえ軽量な機体の荷重の集中はさらに緩和され既設桁に与える影響を少なくできる。

スフィンクス概要図(IHIインフラシステム提供、以下注釈なきは同)

装置全景(井手迫瑞樹撮影)
機械には発電機が搭載されており外部電源が不要、既設床版引剥がし用のセンターホールジャッキも吊天秤に内蔵されており、引剥がし時に別途ジャッキを用意する必要もない。


吊天秤引き剥がし時/同架設時
床版撤去・架設用の吊り上げフックは1点のみで(右写真)、これに吊天秤の吊環がぶら下がっている。撤去、架設時ともこの吊天秤を床版上面に4点固定することで、吊り上げる。吊天秤の中には水平ジャッキが仕込まれており、吊環の位置を左右に動かすことで床版の傾きを調整することができる。また、フックの上面(トロリーとチェーンブロックの間)にも左右200mmストロークずつ動かる水平ジャッキが装備されおり、フック位置の左右微調整を行うことができる。加えて、支柱から前後に突き出す脚部の途中に関節を持ち、関節はヒンジ部とその上にあるクレビスジャッキで構成されている。クレビスジャッキを伸ばすと関節が膝のように曲がり、 脚部先端の車輪部を下に押し下げる。 レールの高さに不陸が生じ、機械全体が傾くと、傾斜センサーが傾きを感知し、低い側の車輪部を下に押し下げることで、機械全体を水平に保つことができる。装置高が高くなってしまうため、ジャッキを水平に配置するのは装置高を抑えるための工夫のひとつである。


床版の運搬/建築限界4.5mの高さでも走行可能

「脚周りの関節図」


脚ジャッキ短縮時/同伸長時①


脚ジャッキ伸長時②
これらジャッキを駆使することで、事前に床版上や鋼桁上に敷設したレール上を走行しながら取替機の姿勢を自動制御することが可能。制御盤には前方左右、前後、後方左右の傾斜率を表示されており、走行時は左右水平、前後は桁の傾斜に合わせた姿勢にし、架設時は前後左右水平姿勢に自動調整することができる。こうした機能が±5%の勾配対応や施工の迅速化を可能にした。
走行速度は、勾配に応じて中速(5~6m/分)、高速(9m/分)の3段階に分けることができる。


勾配に応じて床版の姿勢も変えて運んでいる(井手迫瑞樹撮影)

床版取替機制御盤(井手迫瑞樹撮影)


床版の勾配をフラットにするため脚ジャッキを調整/調整して位置決めした後はストッパーで固定
(井手迫瑞樹撮影)




床版を前に引き出していく(井手迫瑞樹撮影)


人力で介錯しながら床版を架設方向に回転させる/床版の傾きのバランスを取るため設けられている
吊天秤直下にあるジャッキ(井手迫瑞樹撮影)


吊り点を左右に微調整できる機構/桁の縦横断勾配に応じて床版を設置できる(井手迫瑞樹撮影)
施工は、まず撤去・架設する鋼桁の間隔に応じて、装置の幅を決め、20㎏レールを上に装置を組み立てる。そして既設床版内蔵しているセンターホールジャッキにより引剥がし、トラックに積み込んで場外に出し、桁上面のはつりや再塗装、スタッドの配置などを行った後に新たな床版を荷取りして所定の場所まで運び架設を行う。
こうした作業は従来同様4~5人程度の人員で施工することが可能だ。
今後は西湘バイパスなどの床版更新の現場で積極的に運用していく方針だ。(井手迫瑞樹)(2021年3月31日掲載)


