西日本高速道路(NEXCO西日本)は、広島自動車道の広島北JCT~広島北ICに架かる烏帽子第一橋(下り線)で床版取替工事を実施した。同橋は1983年の供用から36年が経過し、既設RC床版にひび割れや鉄筋露出などの損傷が発生していることから、広島道では初めてとなる高速道路リニューアルプロジェクトとして、床版取替を行う。その現場をレポートする。
橋梁概要と損傷状況
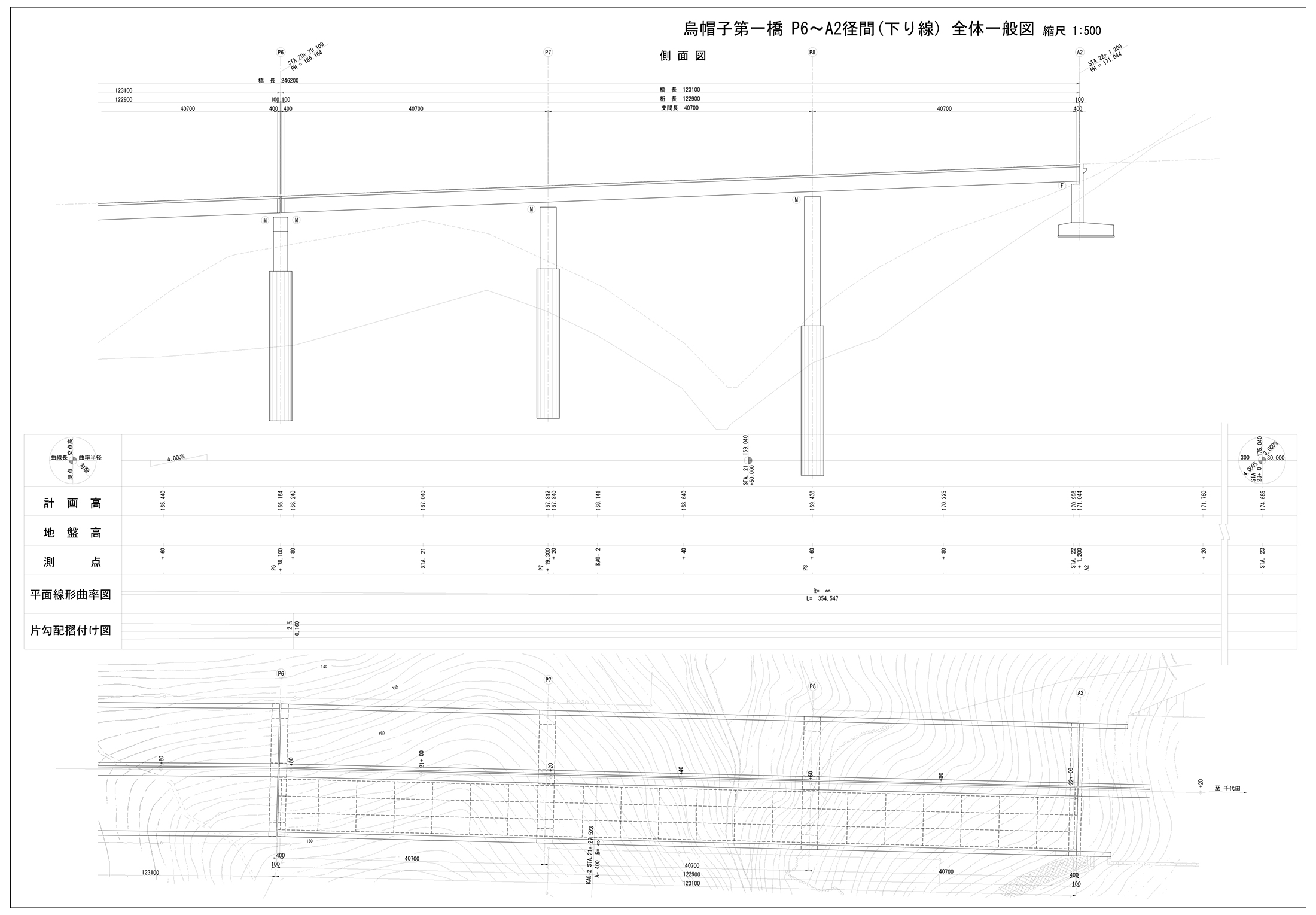
烏帽子第一橋(下り線)は橋長293.9m、有効幅員8.5mのRC3径間連続ラーメン橋(47.7m)+3径間連続非合成鈑桁橋(123.1m)×2連で、今回は広島北JCT側の鈑桁橋2連(P3~P6~A2)の246.2m(約2,600m2)が対象となる。縦断勾配はP3~P6間が5%~2%で、P6~A2間が4%~3%、横断勾配はそれぞれ4%。同橋が架橋されている広島北JCT~広島北IC間の交通量は、約20,000台/日で、大型車混入率は19%だ(2018年度)。


橋梁一般図(左:P3~P6径間/右:P6~A2径間)(NEXCO西日本提供。注釈なき場合は同)
既設RC床版の厚さは230mmで、2001年度にP6~A2間、2002年度にP3~P6間で高強度繊維補強コンクリートでの床版補修と床版防水工、高機能Ⅰ型舗装を施工している。同橋を含む広島北JCT~広島西風新都IC間の凍結防止剤散布量は約600t/年で、塩化物イオン量は健全部と損傷部の平均値が0.71kg/m3、損傷部の最大値が1.7kg/m3で発錆限界値を超えていた。凍結防止剤散布の影響による塩害や中性化などにより、床版下面にはひび割れ、浮き、はく落、漏水、鉄筋露出の損傷が発生していたことから、抜本的対策として、プレキャストPC床版への取替えを行うことにした。床版上面は2001年度と2002年度の補修により、目立った損傷は発生していない。

床版下面の損傷状況
仮置きヤードで壁高欄地覆部を事前施工
安全対策ではレーザーバリアシステムを構築
本現場は、中国自動車道と広島市内を結ぶ比較的交通量の多い広島道での工事であり、ゴールデンウィーク後から夏季混雑時前の約3カ月を交通規制(対面通行規制の設置から撤去までの期間)とした下り線の施工ヤードにおいて、約2カ月間で延長約240mの床版取替工事を完了する必要があったため、工期短縮の取り組みと安全対策が求められた。
工期短縮の取り組みのひとつが、「中央分離帯部の地覆を撤去するための吊孔と切断を先行で施工したこと」(元請の極東興和)だ。対面通行規制開始前の5月8日~16日までの昼夜連続追越車線規制の期間中は、中央分離帯部が規制状態となる。そのため、施工が可能となり、吊孔と切断の施工を先行することで工期短縮を図ることができた。
追越車線規制状況
中央分離帯部の地覆を撤去するための吊孔と切断を先行して施工した
また、壁高欄地覆部の事前施工も行った。極東興和江津PC工場で製作した新設プレキャストPC床版を浜田自動車道大朝IC近くの仮置きヤードに搬入。仮置きヤードで床版折点から約35cmの高さまで壁高欄地腹部を新設床版と一体化した。これにより、すべてを現場施工で行うよりも3~5日間の工期短縮を実現している。
地覆部の先行打設/施工完了
安全対策では、供用中の上り線との境界にレーザーバリアシステムを構築して、クレーン旋回範囲や吊り荷のヤード逸脱を監視した。
レーザーバリアシステムで安全施工を徹底(大柴功治撮影)
通行車両に対しては「情報板を25枚設置し、ネット回線を使用して規制や渋滞などの情報表示を切替えて、交通安全の確保を図った」(NEXCO西日本)という。










